兰州新区乾川景悦房地产项目二期公示

兰州通驰房地产开发有限公司

许可证号:建字第6201222026GG0002683号

审批事项名称:建设工程规划许可证

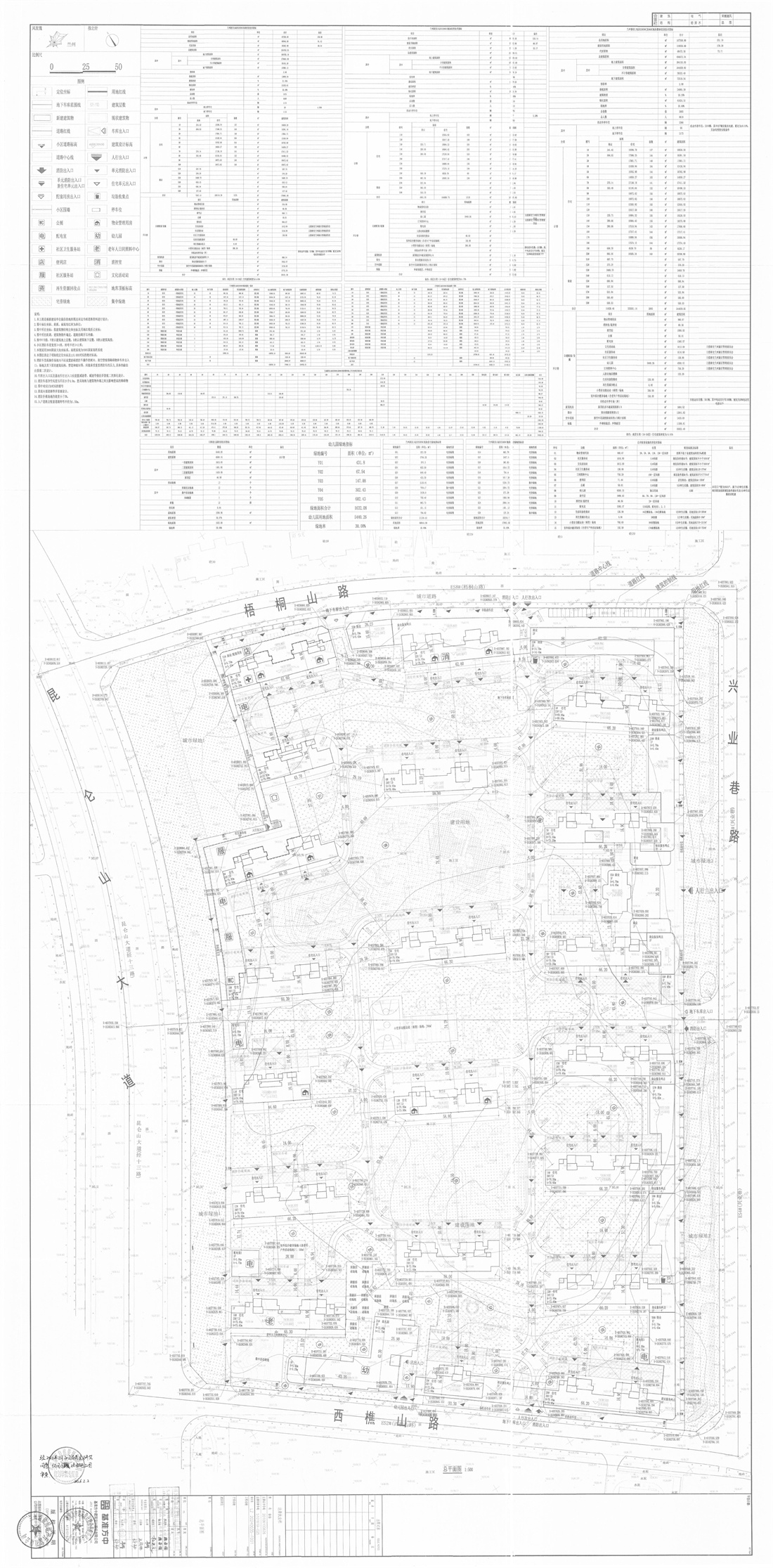
项目名称:兰州新区乾川景悦房地产项目二期

建筑面积:总建筑面积456672.34㎡,其中地上建筑面积384153㎡,地下建筑面积72519.34㎡。

项目地址:兰州新区经十三路东侧、ES8#路南侧、ES4#路西侧区域。

发证日期:2026年02月02日

发布时间:2026年02月02日

来源:
【打印本页】 【关闭窗口】
扫一扫在手机打开当前页